Loading

Projekte in Planung

Gemeindezentrum Sigmundsherberg

Am 22. März 2026 findet eine Volksbefragung in der Marktgemeinde Sigmundsherberg zum Thema “Gemeindezentrum” statt.

Als Stichtag gilt der 3. Februar 2026.

Die Frage, die durch die Volksbefragung entweder mit „Ja“ oder mit „Nein“ zu entscheiden ist, lautet wie folgt:

Soll das 2021 und 2024 vom Gemeinderat einstimmig beschlossene Gemeindezentrum mit barrierefreiem Gemeindeamt, Multifunktionssaal, Gastronomie, Gemeindearchiv, barrierefreien Wohnungen, Post Partner-Stelle, Nahversorger mit längeren Öffnungszeiten und einer Bücherei auf den Grundstücken Nr. 170, 172, 173 – Bahnstraße 1, 3751 Sigmundsherberg – jetzt umgesetzt werden?

Folgende Sprengel, Abstimmungslokale und -zeiten wurden dabei festgelegt:

Abstimmungssprengel

Abstimmungslokal

Anschrift

Abstimmungszeit

1 Sigmundsherberg

Volksschule

Brugger Straße 7, 3751 Sigmundsherberg

08.00 Uhr bis 12.00 Uhr

2 Rodingersdorf

Feuerwehrhaus-Dorfzentrum

Hauptstraße 39, 3751 Rodingersdorf

08.00 Uhr bis 11.30 Uhr

3 Kainreith

Feuerwehrhaus

3752 Kainreith 13

08.30 Uhr bis 10.30 Uhr

4 Walkenstein und Brugg

Feuerwehrhaus

3752 Walkenstein 51

09.30 Uhr bis 11.00 Uhr

6 Röhrawiesen

Feuerwehrhaus

3752 Röhrawiesen 32

10.00 Uhr bis 11.00 Uhr

7 Theras

Jugendzentrum Theras

3742 Theras 91

09:00 Uhr bis 11:30 Uhr

8 Missingdorf

Dorfhaus

3751 Missingdorf 13

09.00 Uhr bis 11.00 Uhr

Am Abstimmungstag verhindert?

Können Sie am Abstimmungstag, 22. März 2026, ihr Abstimmungslokal nicht aufsuchen, können Sie Ihre persönliche Stimmkarte mittels tieferstehenden Link anfordern.

Wichtig:

  • Der letztmögliche Zeitpunkt für schriftliche und Online Anträge ist Mittwoch, der 18.03.2026, 24:00 Uhr bzw. wenn eine Abholung durch den Antragsteller oder einen Bevollmächtigten gewährleistet ist, schriftliche Anträge bis Freitag, den 20.03.2026, 12:00 Uhr.

  • Persönliche Antragstellung bis Freitag, den 20.03.2026, 12:00 Uhr.

  • Die Stimmkarte muss spätestens am 22.03.2026, um 6:30 Uhr, bei der Marktgemeinde Sigmundsherberg einlangen. Weiters haben Sie die Möglichkeit, die Stimmkarte am Abstimmungstag im Abstimmungslokal der für Sie zuständigen Sprengelwahlbehörde abzugeben oder durch Boten überbringen zu lassen.

  • Stimmkarten können nicht per Telefon beantragt werden.

Visualisierung

Eine architektonische Darstellung eines modernen Gebäudes zeigt Menschen, die gehen, und ein Auto, das auf einer Straße fährt. Eine Frau steht vor dem Gebäude.
Eine künstlerische Darstellung eines modernen Gebäudes mit Menschen, die auf dem Bürgersteig gehen, und einem vorbeifahrenden Auto.
Eine konzeptionelle Darstellung eines modernen Gebäudes mit Glasfenstern und Balkonen. Einige Personen sind auf den Stufen. Ein Radfahrer fährt auf der Straße.
Eine 3D-Darstellung einer Wohngegend mit einem kleinen Mädchen, das ein Fahrrad mit Blumen fährt, und einem Kleinkind, das neben ihr geht.
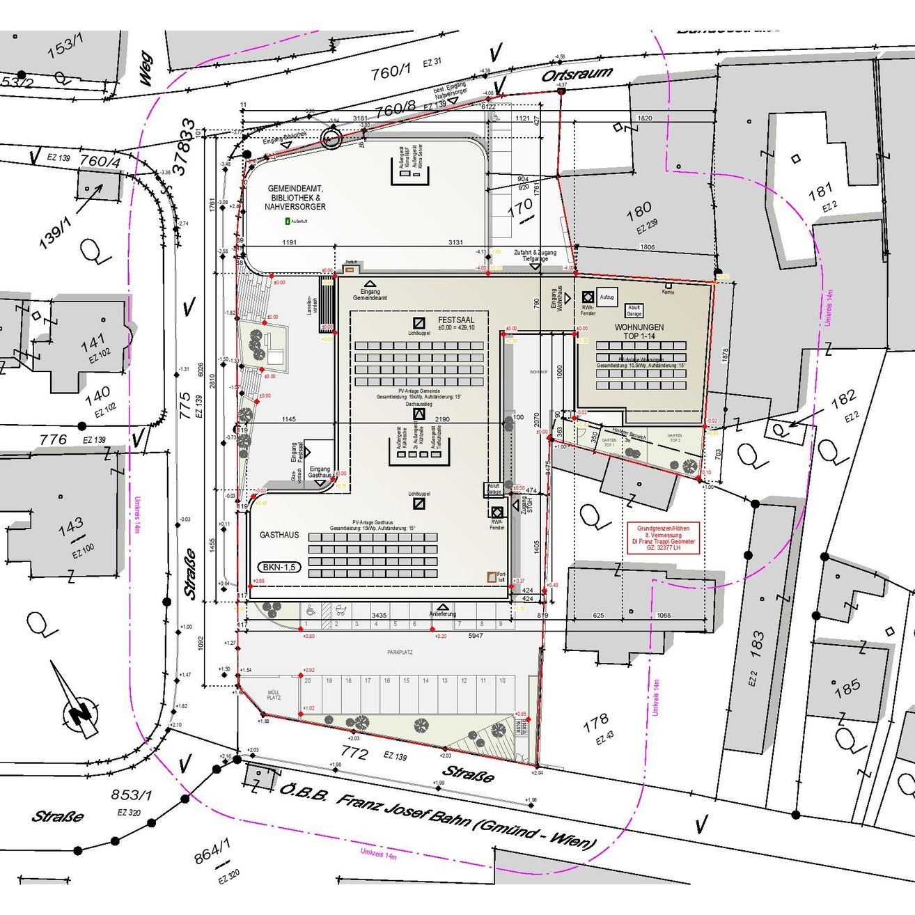
Das Bild ist ein detaillierter architektonischer Grundriss mit verschiedenen Abmessungen und Maßangaben. Es umfasst ein zentrales Gebäude mit mehreren Räumen, umgeben von kleineren Strukturen und offenen Bereichen. Beschriftungen wie 'Ortsraum', 'Festsaal' und 'Gasthaus' sind vorhanden und geben die spezifische Nutzung der verschiedenen Bereiche an. Es gibt auch nummerierte Parzellen und Grenzlinien.
Ein Grundriss zeigt den Aufbau eines Gebäudes. Es enthält Bereiche mit Bezeichnungen wie 'Bibliothek', 'Nah & Frisch Markt', 'Gemeinde', 'Mul', 'Heiz', 'Garage', 'Pellets Lager' und 'Gasthaus'. Das Gebäude hat verschiedene Räume, einige mit spezifischen Funktionen wie Lager oder Restaurant. Es gibt auch Parkplätze und Lagerbereiche.
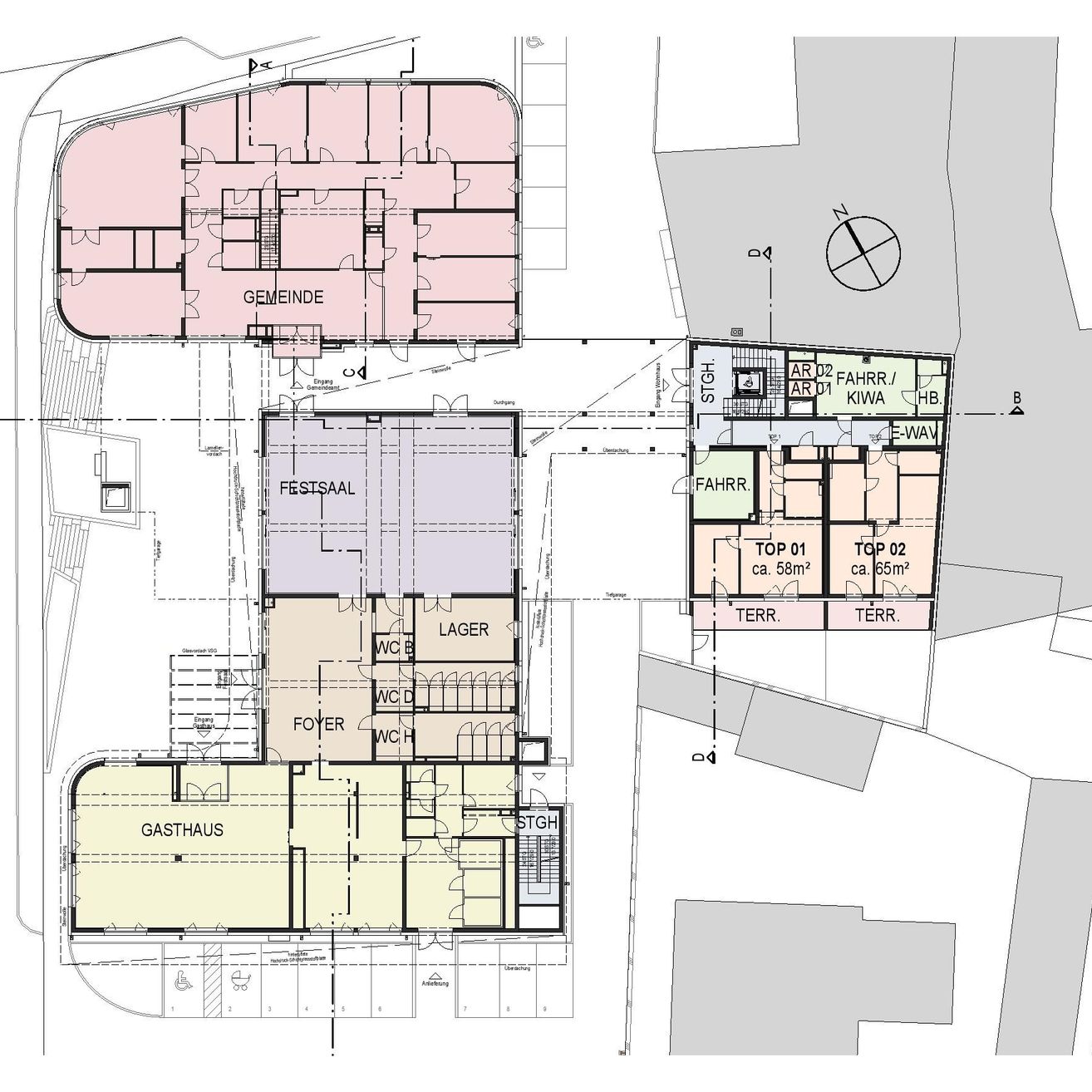
Der architektonische Plan zeigt ein dreistöckiges Gebäudelayout mit beschrifteten Räumen wie 'GEMEINDE', 'FESTSAAL' und 'GASTHAUS'. Das oberste Stockwerk hat 'AR02', 'FAHRR' und 'TOP 01'. Das mittlere Stockwerk enthält 'Lager' und 'WC'. Das Erdgeschoss umfasst 'TER' und 'STG'. Abmessungen und Raumflächen sind angegeben.